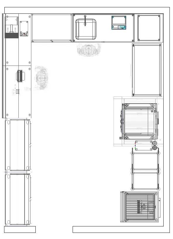
Демонстрационная схема проекта

Полный цикл работ
- Сбор первичной информации о проекте
- Предоставление примеров работ (при необходимости)
- Согласование коммерческого предложения на проектирование
- Определение площади и расчет стоимости проектных решений
- Согласование технического задания с пожеланиями от клиента
- Первичная экспертная консультация
- Подписание договора на проектирование и утверждение сроков реализации
- Выезд на объект для проведения замеров и осмотра (в Санкт-Петербурге, при необходимости);
- Подготовка эскизных версий проекта;
- Проведение совещаний по проекту с получением обратной связи (офф-лайн, он-лайн на выбор)
- Формирование предварительной спецификации для согласования
- Формирование полного пакета проектной документации
- Выдача технического задания для смежных подразделений
- Подготовка окончательной версии спецификации
- Предоставление ссылки на облако с электронной версией файлов по проекту в редактируемом формате
- Предоставление консультаций по проекту от нашего проектного отдела для клиента и смежных подразделений
- Внесение требуемых правок, согласно договору
Мечтаете открыть уникальную пекарню? Воплотим все ваши идеи в реальность
Пекарни, в большинстве своем, это заведения, расположенные в небольших помещениях. Подобные помещения, как правило, имеют ограничения по мощностям инженерных сетей, мы подберем оборудование, которое вам идеально подходит, с учетом вашей проходной способности и ограничений по электричеству, воде и вентиляции
Пекарня, зачастую, это небольшое заведение, где каждый миллиметр площади является ценным ресурсом. Наши технологи уделяют особое внимание точному измерению помещений, а модели оборудования на чертеже соответствуют его реальным габаритам, что в свою очередь гарантирует вам полное соответствие чертежа реальному объекту
Эффективность любого предприятия общественного питания, а в особенности пекарни, зависит от правильно организованного технологического процесса. Технологические процессы должны быть последовательными, обеспечивать безопасность, повторяемость и ритмичность процесса выпуска готовой продукции, а также безопасность, и комфорт работы персонала
Выбор оборудования для пекарен зависит от ряда факторов, таких как: ассортимент продукции, площадь помещений и особенности инженерных сетей. Грамотный подбор оборудования позволяет рационально использовать бюджет и пространство, а также обеспечивает стабильное качество и необходимый объем производства
Наши преимущества
Благодаря широкому ассортименту в наличии, а также нашей команде профессионалов, мы можем подобрать оборудование под любые цели и задачи с учётом имеющихся ограничений проекта. Правильно подобранное оборудование обеспечивает ряд преимуществ, таких как: энергоэффективность, комфорт работы персонала, обеспечение уникальности заведения, бесперебойная работа самого оборудования, ускорение отдачи готовых блюд, обеспечение ритмичности работы кухни, уменьшение потерь при первичной и вторичной обработке сырья, правильное хранение сырья и полуфабрикатов на протяжении всего срока годности, обеспечение сбалансированного распределения площадей производственных помещений и помещений для гостей, уменьшение боя посуды, экономия площадей для складских помещений.
Автоматизация производственных процессов, в первую очередь, предназначена для того, чтобы ускорить протекание производственных процессов, при сохранении их постоянства и одновременной экономии человеческих ресурсов.
Однако, благодаря автоматизации, появляется ещё и целый ряд вторичных преимуществ, таких как: высокая степень повторяемости внешнего вида и состава готовых блюд, экономия производственных площадей порядка 25–30%, сниженные требования к профессиональной подготовке персонала, возможность оперативно производить корректировки под колебания качества сырья, организация сложных, комбинированных процессов термической обработки в автоматическом режиме.
Правильно расположенное оборудование и инвентарь позволяют уменьшить количество персонала кухни за счёт обеспечения эргономичности и механизации производственных процессов, при этом мы сохраним способность кухни выдавать максимальное количество готовых блюд в необходимый промежуток времени. Тем самым мы предоставим вам возможность дополнительно экономить на энергоносителях, количестве оборудования и площади производственных помещений.
В компании Альфторг уверены, что кухня начинается в первую очередь с комфорта и эргономики работы персонала на ней, ведь при неудобном расположении оборудования, постоянство качества готовой продукции не сможет обеспечить даже самое дорогое оборудование.
Наши проектировщики имеют практический опыт работы на кухнях и производствах общественного питания, что позволяет им создавать максимально комфортные условия для работы кухни, также при проектировании мы готовы к взаимодействию со смежными подразделениями и работниками кухни со стороны заказчика, что позволяет нам получать все пожелания из первых рук.
Проектировщики
Выполненные проекты
Заведение входит в известную сеть пекарен "Лавка пекаря". Место выделяется интерьером в эко-стиле и богатым выбором выпечки.
Для пекарни был разработан проект и поставлено оборудование:
- Тепловое: Unox
- Холодильное: Carboma, Aucma, Марихолодмаш
- Электромеханическое: Viatto, Foodatlas, Hurakan
- Иное оборудование: Abat, Eksi
Выполненные работы
- Технологический проект
- Подбор оборудования
- Поставка оборудования
Заведение входит в известную сеть "Наша пекарня". Место выделяется грамотно проработанной компоновкой оборудования в условиях стесненного пространства.
Для пекарни был разработан проект и поставлено оборудование:
- Тепловое: Unox, Abat
- Холодильное: Carboma, Hicold, Polair
- Электромеханическое: Sirman, Fimar, Gastrorag
Выполненные работы
- Технологический проект
- Подбор оборудования
- Поставка оборудования



































































































































