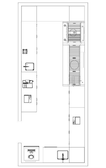
Демонстрационная схема проекта
Полный цикл работ
- Сбор первичной информации о проекте
- Предоставление примеров работ (при необходимости)
- Согласование коммерческого предложения на проектирование
- Определение площади и расчет стоимости проектных решений
- Согласование технического задания с пожеланиями от клиента
- Первичная экспертная консультация
- Подписание договора на проектирование и утверждение сроков реализации
- Выезд на объект для проведения замеров и осмотра (в Санкт-Петербурге, при необходимости);
- Подготовка эскизных версий проекта;
- Проведение совещаний по проекту с получением обратной связи (офф-лайн, он-лайн на выбор)
- Формирование предварительной спецификации для согласования
- Формирование полного пакета проектной документации
- Выдача технического задания для смежных подразделений
- Подготовка окончательной версии спецификации
- Предоставление ссылки на облако с электронной версией файлов по проекту в редактируемом формате
- Предоставление консультаций по проекту от нашего проектного отдела для клиента и смежных подразделений
- Внесение требуемых правок, согласно договору
Мечтаете открыть уютное кафе? Расскажите о своих идеях нам!

Для кафе важно, чтобы оборудование не только соответствовало концепции заведения, но и обеспечивало бесперебойное приготовление блюд. Мы подберем оборудование, идеально подходящее для вашего кафе, независимо от его концепции и ежедневной проходимости, тем самым гарантируя вам максимальную прибыль от вашего заведения
Кафе должно быть готово к сезонным изменениям меню или к резкому увеличению потока гостей. Мы можем предложить вам современные, производительные и высокофункциональные решения, которые легко адаптируются под новые задачи, и проектируем кухню так, чтобы она обеспечивала максимальную производительность даже при обслуживании мероприятий и реализации различных сезонных форматов
Мы проектируем кухню так, чтобы каждый квадратный метр способствовал вашему успеху. Независимо от размера заведения — будь то уютное кафе на 10 мест или заведение с посадкой более 100 человек — мы обеспечим рациональное размещение оборудования и оптимальную организацию маршрутов персонала, гарантируя высокий темп работы даже в часы пик
Кафе — это широкий спектр заведений, от классических кафе и кафе-мороженых до тематических пространств с уникальной продукцией. Мы подберем для вас оборудование, которое обеспечит соответствие блюд концепции вашего заведения, подчеркнет его индивидуальность и поможет создать незабываемую атмосферу для гостей
Наши преимущества
Благодаря широкому ассортименту в наличии, а также нашей команде профессионалов, мы можем подобрать оборудование под любые цели и задачи с учётом имеющихся ограничений проекта. Правильно подобранное оборудование обеспечивает ряд преимуществ, таких как: энергоэффективность, комфорт работы персонала, обеспечение уникальности заведения, бесперебойная работа самого оборудования, ускорение отдачи готовых блюд, обеспечение ритмичности работы кухни, уменьшение потерь при первичной и вторичной обработке сырья, правильное хранение сырья и полуфабрикатов на протяжении всего срока годности, обеспечение сбалансированного распределения площадей производственных помещений и помещений для гостей, уменьшение боя посуды, экономия площадей для складских помещений.
Автоматизация производственных процессов, в первую очередь, предназначена для того, чтобы ускорить протекание производственных процессов, при сохранении их постоянства и одновременной экономии человеческих ресурсов.
Однако, благодаря автоматизации, появляется ещё и целый ряд вторичных преимуществ, таких как: высокая степень повторяемости внешнего вида и состава готовых блюд, экономия производственных площадей порядка 25–30%, сниженные требования к профессиональной подготовке персонала, возможность оперативно производить корректировки под колебания качества сырья, организация сложных, комбинированных процессов термической обработки в автоматическом режиме.
Правильно расположенное оборудование и инвентарь позволяют уменьшить количество персонала кухни за счёт обеспечения эргономичности и механизации производственных процессов, при этом мы сохраним способность кухни выдавать максимальное количество готовых блюд в необходимый промежуток времени. Тем самым мы предоставим вам возможность дополнительно экономить на энергоносителях, количестве оборудования и площади производственных помещений.
В компании Альфторг уверены, что кухня начинается в первую очередь с комфорта и эргономики работы персонала на ней, ведь при неудобном расположении оборудования, постоянство качества готовой продукции не сможет обеспечить даже самое дорогое оборудование.
Наши проектировщики имеют практический опыт работы на кухнях и производствах общественного питания, что позволяет им создавать максимально комфортные условия для работы кухни, также при проектировании мы готовы к взаимодействию со смежными подразделениями и работниками кухни со стороны заказчика, что позволяет нам получать все пожелания из первых рук.